Home Leistung Bestandserfassung Verformungsgetreue Bauaufnahme
|
|
Verformungsgetreue Bauaufnahme |
|
|
|
Verformungsgetreue Bauaufnahme bedeutet die zeichnerische maßstabsgetreue Erfassung eines Bauwerkes.
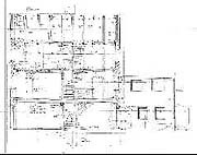
Mit Hilfe moderner Vermessung (z.B. Tachymetrie) werden vor Ort Grundrisse und Schnitte gezeichnet. In den Plänen werden bauliche und konstruktive Details festgehalten. Diese Art von „Röntgenbild“ dient als Grundlage für Entwurfs- und Werkplanung und vor allem zur Planung statischer Maßnahmen. Neben der Erfassung von Schäden können mit Hilfe der Bauaufnahme auch Baualterspläne erstellt werden. Die Geschichte des Bauwerkes wird somit transparent. Verformungsgetreue Bauaufnahme dient als unabdingbare Planungsgrundlage. Sie hilft fachgerechte Entscheidungen zu treffen, vermeidet unliebsame Überraschungen und trägt somit bereits im Vorfeld zur Planungs- und Kostensicherheit bei. 
Beispiele verformungsgetreuer Bauaufnahmen. Zur größeren Ansicht ins Bild klicken (Achtung Ladezeit: Bilder ca. 3,5 MB).
|
|